
一、氣動二片式球閥 概述
Q611F氣動二片式內螺紋球閥閥體鑄造采用國外引進的先進工藝,結構合理、造型美觀。氣動二片式球閥分為整體式、兩段式及三段式。閥桿采用倒密封的下裝式結構,閥腔異常升壓時,閥桿不會被沖出。閥座采用彈性密封結構,密封可靠,啟閉輕松。
二、氣動二片式球閥 特點
流體阻力小,其阻力系數與同長度的管段相等。結構簡單、體積小、重量輕。緊密可靠,目前球閥的密封面材料廣泛使用塑料、密封性好,在真空系統中也已廣泛使用。操作方便,開閉迅速,從全開到全關只要旋轉90°,便于遠距離的控制。維修方便,氣動球閥結構簡單,密封圈一般都是活動的,拆卸更換都比較方便。
二、氣動二片式球閥性能規范
|
公稱通徑DN(mm) |
15-65 |
|||||||
|
適用 |
適用介質 |
水蒸汽、油品 |
硝酸類 |
醋酸類 |
|
|||
|
適用溫度 |
-28℃~350℃ |
|||||||
|
執行器 |
型號 |
63系列、SW系列 |
||||||
|
氣源壓力 |
0.4~0.7MPa |
|||||||
|
材料\材料代號 |
C |
P |
R |
|
||||
|
主要 |
閥體 |
WCB |
CF8 304 |
CF8M 316 |
|
|||
|
球板 |
WCB |
CF8 304 |
CF8M 316 |
|
||||
|
閥桿 |
2Cr13 |
0Cr18Ni9 |
0Cr17Ni12Mo2 |
|
||||
|
密封圈 |
增強聚四氟乙烯 對位聚笨 |
|||||||
|
填料 |
聚四氟乙烯 柔性石墨 |
|||||||
|
二段式不銹鋼球閥按用戶要求可做成外螺紋連接型卡箍型 |
||||||||
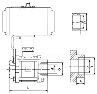
三、氣動二片式內螺紋球閥 尺寸及重量
|
公稱通徑DN/mm |
管螺紋 G/in |
尺寸(mm) |
重量(kg) |
|||||
|
D1 |
L |
L1 |
L0 |
D |
H |
|||
|
15 |
G1/2 |
48 |
90 |
45 |
140 |
34.6 |
76 |
0.87 |
|
20 |
G3/4 |
58 |
100 |
50 |
160 |
41.6 |
81 |
2 |
|
25 |
G1 |
66 |
115 |
58 |
180 |
53.1 |
92 |
4 |
|
32 |
G1 1/4 |
80 |
130 |
64 |
200 |
63.5 |
112 |
5 |
|
40 |
G1 1/2 |
92 |
150 |
75 |
250 |
69.3 |
121 |
7.5 |
|
50 |
G2 |
114 |
180 |
90 |
300 |
86.5 |
137 |
10 |
|
65 |
G2 1/2 |
136 |
190 |
100 |
300 |
104 |
147 |
12 |
溫州市韓鋼閥門有限公司(原溫州龍灣東特閥門廠)
址址:浙江省溫州市龍灣永興工業區
電話:+86-577-86929779
傳真:+86-577-86923779
手機:18957738133
E-mail:hangangvalve@163.com
網址:www.talyjs.com

掃一掃微官網

加微信好友

加微信好友
Copyright © 2020 溫州市韓鋼閥門有限公司 All Rights Reserved. 技術支持:溫州網絡公司 浙ICP備13025146號-1 網站地圖 XML